Оренбург
Курс ЦБ РФ
USD 77.188
EUR 91.7113
KZT 0.1573
CNY 1.11582

Слушать Подглядывать

Регистрация, Забыли пароль?

Сделать стартовой
Орск Новотроицк Гай 18+
Это мое объявление 
Этажей 3
Комнат 3
Состояние недвижимости Евроремонт
Количество комнат 3
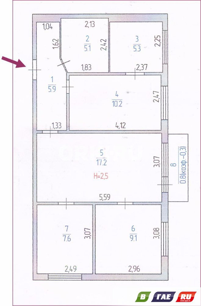
Общая площадь 61
 
Текст объявления 3-комнатная квартира, Декабристов, 9. Этаж 3. Сделана ПЕРЕПЛАНИРОВКА и хороший РЕМОНТ. Состояние квартиры ВЛОЖЕНИЙ НЕ ТРЕБУЕТ. Планировка квартиры: большой коридор, кухня с рабочей зоной и столовая 10, 2 кв. м. , общая комната 17, 2 кв. м. с балконом, две отдельные жилые комнаты 9, 1 кв. м. и 7, 6 кв. м. Окна ПВХ, балкон застеклен. Квартира очень удобна ДЛЯ СЕМЬИ с ДЕТЬМИ, рядом школа № 7, детский сад № 21, магазины. Новая входная дверь, Полы ламинат по всей квартире. Квартира очень хорошая и очень теплая ! Новые счетчики на газ, воду, электричество. Заезжайте и живите в своё удовольствие-это состояние этой квартиры.
Квартира свободна. Документы в полном порядке . Один собственник. Приглашаем на осмотр квартиры. Звоните в любое время, Ценна без торга.
Телефон +7 (953) 455-6050
Город Гай
Цена 1 700 000 руб.
Дополнительные контакты Сергей
Добавлено 26.01.2017 21:31
Активно до 25.02.2017 21:31
ID объявления 67754
 
Пожалуйста, скажите продавцу, что Вы нашли это объявление на сайте Orki.ru!
Это объявление не верно? Сообщите нам об этом!